歴史ある町に住まう
こんにちは!
リノベーションコーディネーターの鈴木です。
青葉区子平町に新しいモデルルームが完成しました。
街の雰囲気に馴染む心地よい空間です。
今回はそんなモデルルームについて紹介します。
--------------------------
《周辺環境について》
▲土橋通り
今回リノベーションしたヴィラ子平町は
1978年7月に竣工した、築約45年のマンションです。
仙台厚生病院の近くから始まる土橋通りを抜けた先にあります。
昔から人や馬の流れの絶えない通りのようですが
今も車や人の往来の多い賑やかな通りです。
土橋通りを抜け、一歩住宅街の細い通りに入ると
とても穏やかな雰囲気の街並みが広がります。
龍雲院や江巖寺、仙台市指定の天然記念物である子平町の藤など
歴史あるものも多く、活気と穏やかさの交わる
なんとも心地よいエリアだなと感じます。
▲龍雲院
▲子平町の藤のある千田文彦さん宅
-------------------------------
《モデルルームについて》
今回のモデルルームのテーマは「Vintage&Simple」

▲レンガ調のレトロな外観
子平町という歴史あるエリアから発想を得てデザインされた当物件。
長く愛されるように、普遍的な暮らしやすさを追求した
デザインしすぎないリラックスできる空間に仕上がりました。
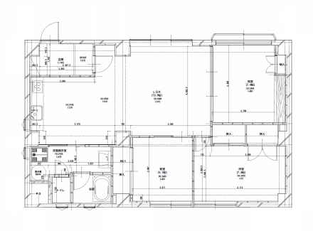
3LDKだったお部屋を2LDKへ変更しています。
早速中を見ていきましょう!
▲工事前図面
▲リノベーション後図面
サンルーム、玄関側が南面です
リビングへつながる扉は親子ドアになっているため
大きな荷物を搬入する際も大変重宝します。
また玄関収納にはシューズボックスとシューズクロークがあり
たくさん靴をお持ちの方にも安心です。
▲玄関
そしてこちらのシューズクローク、
なんとキッチンへと繋がっているんです!
買い物から帰ってきて、または米や水をネットで購入して
重い食料をキッチンまで運ぶのって結構大変だと思います。
これなら手間なく食品のストックもできますね。

▲シューズクロークからつながるキッチン
▲L字型のキッチン
キッチンは火元だけが独立した珍しい形です。
リビングダイニングに面していながら
匂いが広がりにくいといういいとこ取り。
火元を分けることで複数人で作業する場合も危険が少ないメリットもあります。
▲洗面化粧台
キッチンの北側には他の水まわりを集約させています。
洗面化粧台は、デザインだけでなく掃除のしやすさも重視した
水に強いメラミン仕上げです。
隣接する収納棚は奥行きもあるため
タオルや着替え置き場としても重宝しそうです。
また洗面所自体広々と空間をとっているため
1. 洗濯機をまわす
2. 洗濯物を干して乾燥機や除湿器をまわす
3 .タオルや部屋着をそのまま収納
という一連の家事が1箇所で済みます。
家事動線も短く洗面所の湿気対策もばっちりですね。
▲22.4帖の広々LDK
▲リビング北側
なんとLDKの天井高は約2.7m!
食事を楽しむ明るい南面とゆっくり寛ぐ北面TV面、
広いからこその空間の使い分けが可能です。
木の素材感をふんだんに盛り込んだ壁には
「下目板張り」という、よく外装で使われる仕上げを取り入れています。
このお部屋の特徴でもあるLDKの斜めの壁に
さらに奥行き感を感じることができます。
また、板張りのおかげでパブリックな印象の
人の集まるLDKの空間と、
よりプライベート感のある居室の
落ち着いたやわらかい壁紙の色の対比が面白い!
住む人を飽きさせない魅力があります。


▲南側の居室
居室は床を高く上げており天井が低いため
リビングに比べ天井が低くこもり感があり
よりリラックスできる空間になっています。
一方で空間に抜け感と開放感をつくるため
南側の居室には透明ガラスの大きな室内窓を設置しています。
(目線が気になる場合はブラインドなども設置可能◎)
開放感と落ち着き感、
どちらも取り入れられる欲張りなプランは
この物件のポテンシャルがなせるわざです。
▲多目的に活用できるサンルーム
サンルームはさまざまな用途で活用できます。
・読書
・お茶
・瞑想
・ちょっとしたヨガやストレッチ
・植物の世話
・趣味のコレクション部屋として etc…
使い方を限定しない空間が一つあることで
同じ家にいても新鮮に感じられますね。
何より室内でこれだけ緑を楽しめるなんて
こんな贅沢なことがあるでしょうか…
自分だったら何をしようかな?
と考えるだけでわくわくします。
-------------------------------
以上、新モデルルームのご紹介でした。
随時見学会を承っていますので
少しでもご興味のある方はぜひお問い合わせください。
ご来場お待ちしております!
イベント詳細はこちらから
